山形市の土地、新築・中古住宅、マンション、アパートなど不動産の購入・賃貸情報掲載。売却・買取、空き家利活用もご相談下さい。不動産の買取も行っております。ご相談、査定は無料ですので お気軽にご連絡下さい。

山形の不動産ならリバティへ 山形の不動産ならリバティへ

MENU
営業時間/10:00~18:00(水曜日は17時まで、土曜日は15時まで) 定休日/日曜日・祝日  TEL/023-635-1440

10138

お気に入り登録した物件を見る



お探しの物件は成約済みか、もしくは削除された可能性がございます。
トップページへお戻りの上、改めて検索して下さい。

こちらよりHOMEへお戻り下さい

学区検索 一覧へ戻る ホーム

山形市本町2丁目 中古住宅

所在地/山形市本町2丁目1-43

販売価格/5,000万円

建物面積/191.69m2(57.98坪)

土地面積/464.36m2(140.46坪)

区域区分/市街化区域

築年月/1996 年 7 月

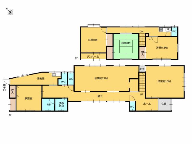
間取り/-(図面参照)

構造/木造亜鉛メッキ鋼板葺 駐車場/有り
山形市中心エリアに立地する140坪の土地・戸建の販売です。
内見を希望される際は、事前にご予約をお願いいたします。



その他概要
土地権利/地目 所有権/宅地 接道状況 北側約20m、東側約8m 公道・接道 約20m、約9m
用途地域 商業地域 建ぺい率/容積率 80%/500%
交通 JR山形駅徒歩約15分 学区 第一小学校第一中学校
現況 空き家 引渡し 相談
設備 公営水道・公共下水
備考 ●公簿売買とさせていただきます。
●土地建物現状有姿でのお引渡しとなります。
●一部が中小河川、下水道、堰の反乱危険個所に該当しております。
●土地の間に官地が通っており、使用にあたり法定外公共物占用等許可申請・占用料が必要となります。
●事務所兼住宅としての利用可能です。
●売主による契約不適合責任は免責とさせていただきます。
●告知事項あり。(詳細についてはお問い合わせください) 
取引形態 仲介


※図面や写真と現況が異なる場合は現況優先となります。徒歩分数は1分=80mで計算しております。


ローン返済シミュレーション
物件価格  万円 頭金  万円 内ボーナス  万円
金利  % 借入期間  年 月々の返済額

※毎回の返済額が均等となる「元利均等返済」で算出、金利は期間中固定となる固定金利を採用しています。
※シミュレーションでの結果は、あくまでも目安です。実際にローン契約をする際は詳細を金融機関にご確認ください。
※実際のローン契約時には諸費用・税金が別途かかりますので契約の際にご確認ください。


この物件に関するお問合せはこちらから

・必須項目は漏れなくご記入下さい。
・お客様の個人情報は厳守いたします。


お問合せ内容をお選び下さい(※必須)



※その他ご希望・ご要望等ございましたらご記入下さい。



お名前(※必須)



メールアドレス(※必須)

※携帯電話のメールのドメイン指定受信をご利用の方は、設定変更をお願いします。

携帯電話のメールにて「受信設定」の「ドメイン指定受信」を行っている方は、当社からのメールが届かない場合がございます。当社のドメイン「liberty-club.net/」からのメールが受信できるように設定の変更をお願い致します。設定方法がご不明な場合は、各携帯電話会社にお問い合わせください。



お電話番号(※必須)



ご住所



連絡希望時間帯